询价公告
根据菏泽市国资委《菏泽市市属企业阳光采购监督暂行办法》、《mansion88明升阳光采购试行办法》相关规定,结合菏建集团公司实际,经mansion88明升公司批准,对山东菏建建筑集团有限公司新菏苑项目外围挡制作安装进行询价采购,择优选定供应商。
一、 采购人:山东菏建建筑集团有限公司
二、项目编号:菏建招字[2020]-71号
三、项目名称:新菏苑项目外围挡制作安装询价采购
四、采购项目情况
1、工程概况:新菏苑项目位于菏泽市开发区仓南路以南,龙泽路以东;
2、工程量:总长度约1000米;
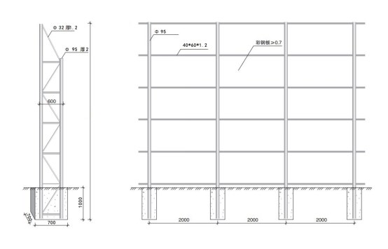
3、技术要求:围挡高度5米,临道路侧铁皮为绿色彩钢瓦(约500米)、其余为蓝色彩钢瓦(约500米),彩钢瓦厚度均为0.7mm;立柱总长度6米,其中地表以上5米,深入基础1米,基础宽度0.7米、长度0.7米,C25混凝土浇筑,立柱材质为φ95毫米镀锌钢管,间距4米;横撑为φ32毫米镀锌钢管;固定用方管尺寸为60毫米X40毫米厚镀锌方管,间隔1米;斜撑为60毫米X40毫米厚镀锌方管,间隔20米;
4、围挡示意图附后。
五、供应商要求
1、具有统一社会信用代码的营业执照副本(或有效企业法人营业执照副本、组织机构代码证副本、税务登记证副本);
2、法定代表人身份证(法人到场的)或法定代表人身份证复印件及法定代表人授权委托书和其委托代理人身份证(委托代理人到场的);
3、在中华人民共和国注册的供应商,符合《中华人民共和政府采购法》第二十二条的规定,营业执照经营范围涵盖本次采购内容;
4、资格审查方式:资格后审;
5、供应商提供同类项目实施情况业绩,附合同原件;
6、本项目不接受联合体报价。
六、报名方式
潜在供应商于2020年8月7日-2020年8月11日上午9:00-12:00,下午 14:30-17:30(周六下午、周日除外),持营业执照副本、法定代表人身份证或法定代表人身份证复印件及法定代表人授权委托书和其委托代理人身份证、同类项目实施情况业绩复印件一份(附合同原件)、报价函到山东菏建建筑集团有限公司5楼(515室)报名,过期不予受理。
七、监督
mansion88明升纪检监察室 (电话:0530-5928562)
八、联系人方式
联 系 人:王庆军、孔令阳
联系方式:0530-5928565、18905305901
山东菏建建筑集团有限公司
2020年 8月 7 日
附图:
![]() |


